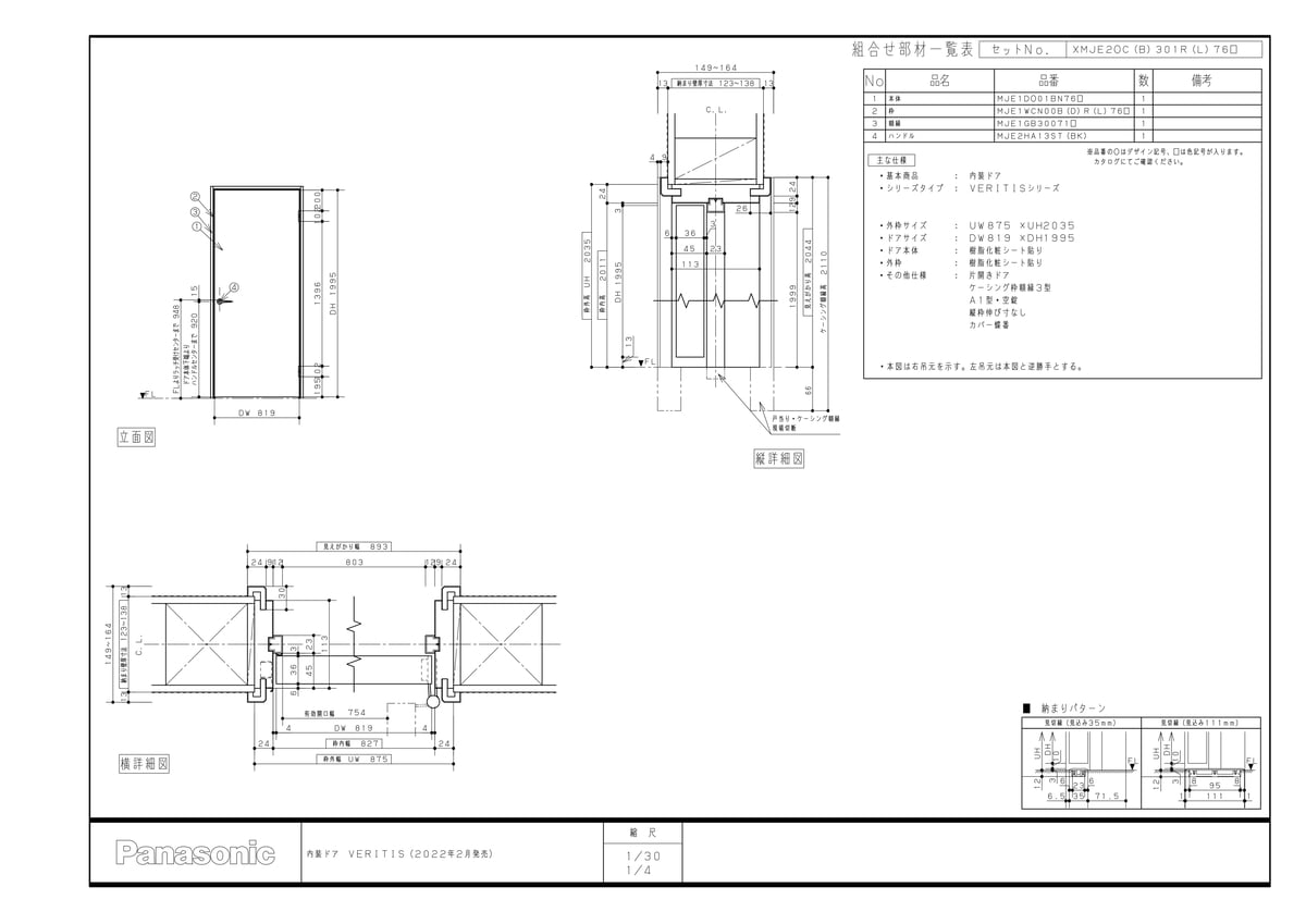
構成品情報
※XMJE2WBC301R76UYの構成品になります
品番: MJE1DWB01BN76UY
品名: ベリWB型ドア本体C蝶819 UY
組込数: 1
品番: MJE1GB30071UY
品名: ベリ額縁3型カバー開き用2M UY
組込数: 1
品番: MJE1WCN00BR76UY
品名: ベリC枠片開枠C蝶R 2M875 UY
組込数: 1
品番: MJE2HA13ST
品名: ベリ レバーハンドルA1型 空錠 ST
組込数: 1
※XMJE2WBC301R76UYの構成品になります
品番: MJE1DWB01BN76UY
品名: ベリWB型ドア本体C蝶819 UY
組込数: 1
品番: MJE1GB30071UY
品名: ベリ額縁3型カバー開き用2M UY
組込数: 1
品番: MJE1WCN00BR76UY
品名: ベリC枠片開枠C蝶R 2M875 UY
組込数: 1
品番: MJE2HA13ST
品名: ベリ レバーハンドルA1型 空錠 ST
組込数: 1




