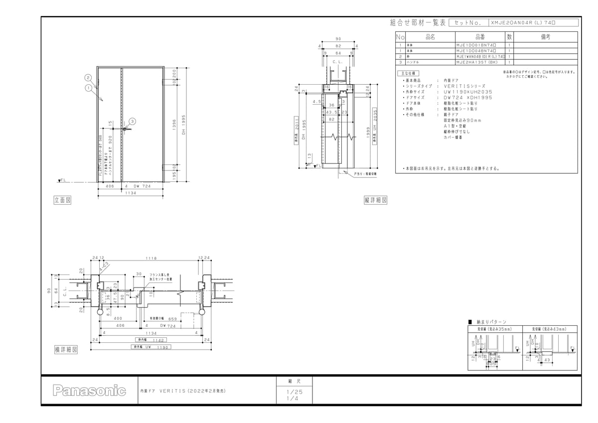
構成品情報
※XMJE2PAAN04R74UYの構成品になります
品番: MJE1DPA01BN74UY
品名: ベリPA型ドア本体C蝶724 UY
組込数: 1
品番: MJE1DPA04BN74UY
品名: ベリPA型子ドア本体C蝶724 UY
組込数: 1
品番: MJE1WAN04BR74UY
品名: ベリ90固親子枠C蝶R 2M780 UY
組込数: 1
品番: MJE2HA13ST
品名: ベリ レバーハンドルA1型 空錠 ST
組込数: 1
※XMJE2PAAN04R74UYの構成品になります
品番: MJE1DPA01BN74UY
品名: ベリPA型ドア本体C蝶724 UY
組込数: 1
品番: MJE1DPA04BN74UY
品名: ベリPA型子ドア本体C蝶724 UY
組込数: 1
品番: MJE1WAN04BR74UY
品名: ベリ90固親子枠C蝶R 2M780 UY
組込数: 1
品番: MJE2HA13ST
品名: ベリ レバーハンドルA1型 空錠 ST
組込数: 1




