構成品情報
※XMJE2DBANY3SR71UYの構成品になります
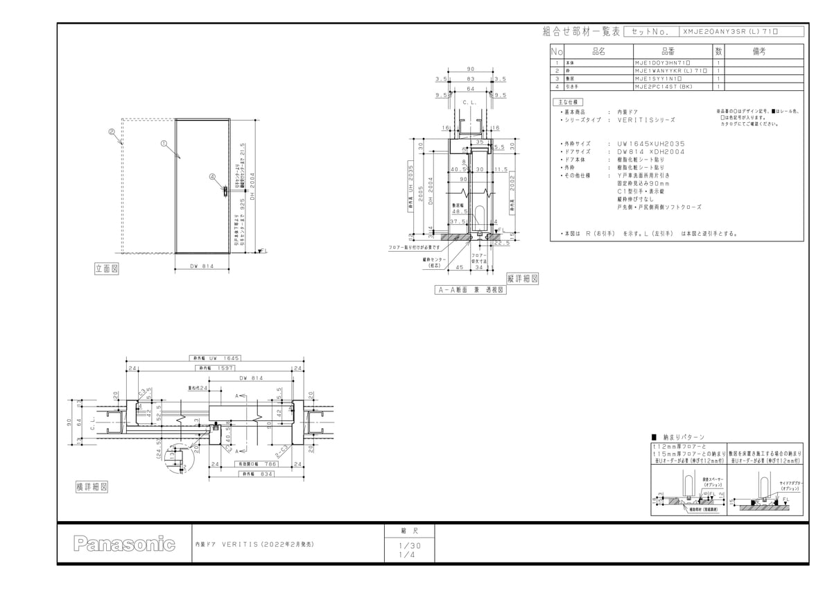
品番: MJE1DDBY3HN71UY
品名: ベリDB型Y戸引戸本体2M814 UY
組込数: 1
品番: MJE1SYY1N1UY
品名: ベリ 敷居 片引 90・110用 UY
組込数: 1
品番: MJE1WANYYKR71UY
品名: ベリ90固Y戸枠錠R 2M1645 UY
組込数: 1
品番: MJE2PC14ST
品名: ベリ 角型引手C1型 表示錠 ST
組込数: 1
※XMJE2DBANY3SR71UYの構成品になります
品番: MJE1DDBY3HN71UY
品名: ベリDB型Y戸引戸本体2M814 UY
組込数: 1
品番: MJE1SYY1N1UY
品名: ベリ 敷居 片引 90・110用 UY
組込数: 1
品番: MJE1WANYYKR71UY
品名: ベリ90固Y戸枠錠R 2M1645 UY
組込数: 1
品番: MJE2PC14ST
品名: ベリ 角型引手C1型 表示錠 ST
組込数: 1




