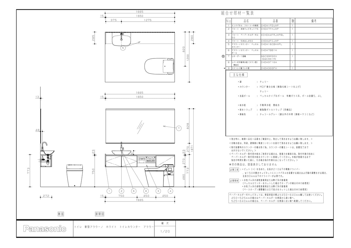
CHDA1FE□
アラウーノ エンドパネル フロート 内側用
¥8,316
税込
商品コード: chda1fe
●左右兼用
●1個入り
●1個入り

